GALERI PENGAWASAN LAPANGAN/ QUALITY CONTROL

PENGAWASAN PEMBANGUNAN PROJECT PERUMAHAN

Pengerjaan susunan batu bata

Pengerjaan susunan batu bata untuk menampilkan fasade/ bentuk bangunan.

Lokasi: 📍Jln. Tg. Morawa Prov. Sumatera Utara

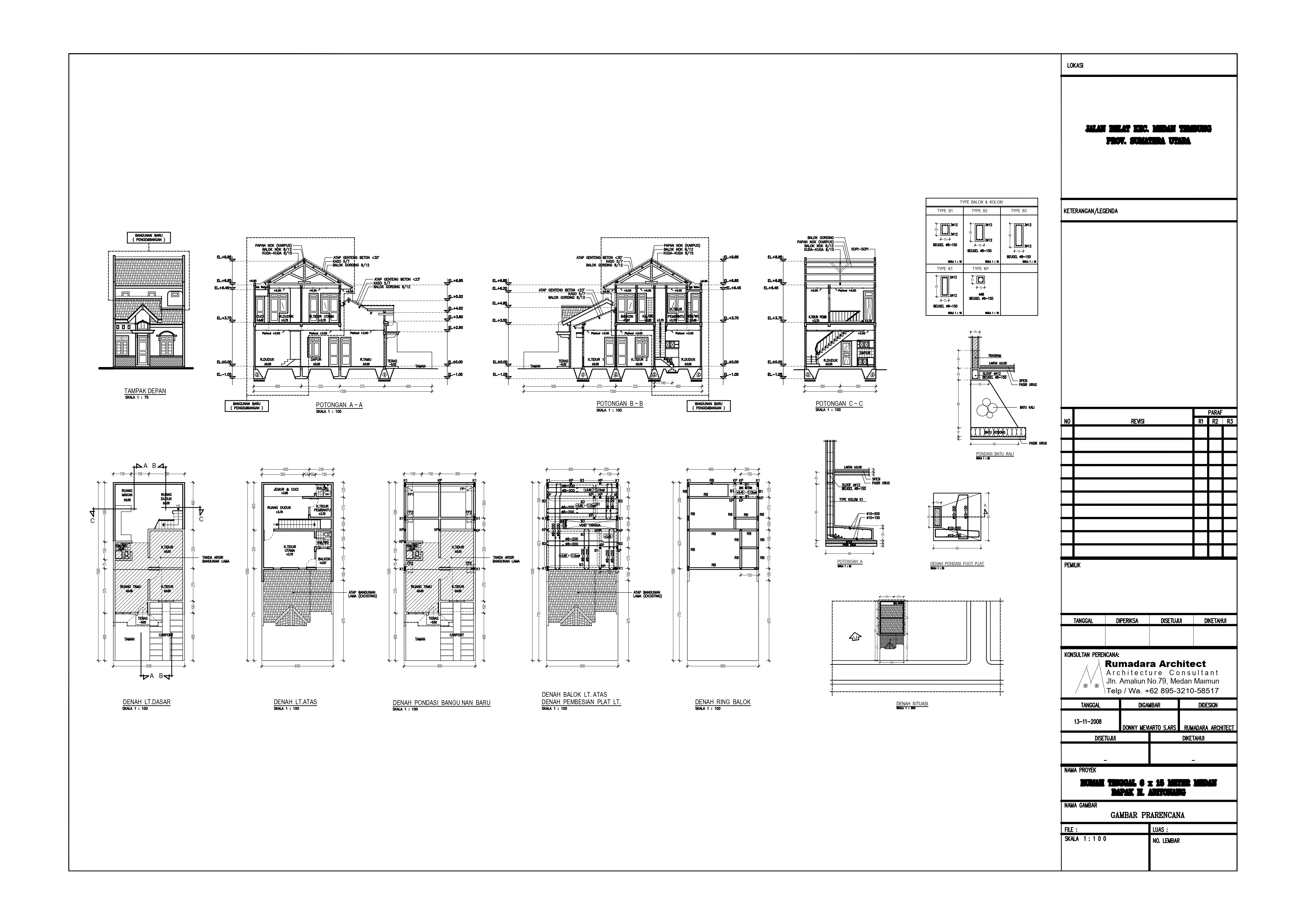
Gambar prarencana mekanikal arsitektur perencanaan rumah tinggal 2 lantai dengan ukuran luas keseluruhan 6 x 15 meter.

Lokasi: 📍Jln. Belat Kec. Medan Tembung

PENGAWASAN PEMBANGUNAN PROJECT PERUMAHAN

Pengerjaan susunan batu bata

Pengerjaan susunan batu bata untuk menampilkan fasade/ bentuk bangunan.

Lokasi: 📍Jln. Tg. Morawa Prov. Sumatera Utara

PENGAWASAN PEMBANGUNAN PROJECT PERUMAHAN

Pengerjaan susunan batu bata

Pengerjaan susunan batu bata untuk menampilkan fasade/ bentuk bangunan.

Lokasi: 📍Jln. Tg. Morawa Prov. Sumatera Utara

WhatsApp